7 800 000 Р 95 960 $ или 82 810

Информация о коттедже

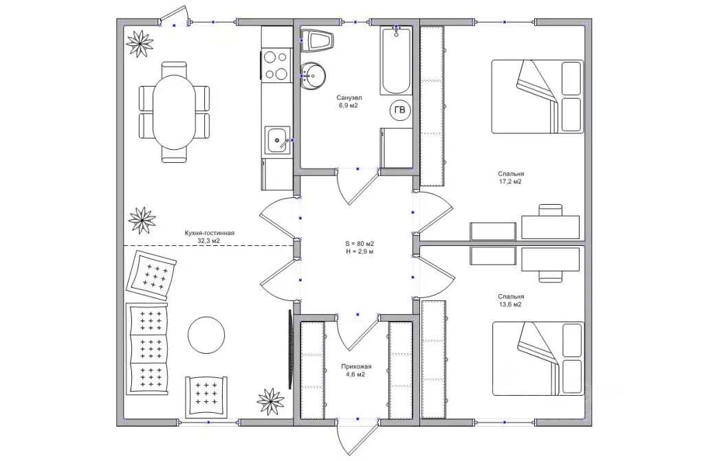
75 м2
Площадь
1
Этажность
10 cоток
Участок

Дополнительная информация

Дом продаётся вместе с участком
есть
Развернуть
Агент
+7 (914) 390-06-92
Начать чат с агентом

Дом в Амурская область, Белогорск пер. Стрелка, 19 (75 м)

Ваш уютный дом у 10-й школы: 75 м, теплый пол, свежий ремонт, мебель в подарок Идеально для молодой семьи. Заезжай и живи Дом вашей мечты ждет вас Окунитесь в атмосферу уюта и современной элегантности Представляем вашему вниманию кирпичный дом, построенный в 2025 году. Расположенный в тихом районе 10-й школы, он станет идеальным гнездышком для молодой семьи или тех, кто ценит комфорт и безопасность.Пространство для жизни и творчестваПредставьте: просторные комнаты, где каждый уголок наполнен светом и теплом. Общая площадь дома 75 квадратных метров, где с любовью и вниманием к деталям создан свежий ремонт. Сердцем дома является просторная кухня, где каждый член семьи сможет найти себе место для творчества и кулинарных шедевров. Все комнаты раздельные, а окна МПО надежно защищают от шума и непогоды. Пол покрыт практичным и стильным кафелем, а крыша, выполненная из 3D андулина, придает дому современный и привлекательный вид.Комфорт и безопасность в каждой деталиЗабудьте о холодных зимних вечерах Система теплый пол согреет ваши ноги, а современная система отопления с отдельным входом в котельную и установленным водонагревателем обеспечит бесперебойную подачу тепла и горячей воды. А что может быть лучше чистой, кристально чистой воды? Установленная система очистки воды позаботится о вашем здоровье и благополучии.Начните новую главу своей жизни Дом полностью готов к заселению вся мебель остается новым владельцам. Вам остается только переступить порог и начать новую главу в своей жизни, наполненную радостью и гармонией. Не упустите свой шанс этот дом ждет именно вас Все объекты, реклама которых осуществляется через Центр недвижимости и страхования Монополия, проходят тщательную проверку на юридическую чистоту документов и конкурентность рыночной цены. Специалисты агентства контролируют весь процесс от выбора объекта до завершения сделки. Все консультации по вопросам приобретения недвижимости, юридического оформления, ипотечного кредитования и страхования совершенно БЕСПЛАТНО Не упустите шанс стать владельцем этого великолепной квартиры Напишите мне с радостью покажу вам этот идеальный вариант для вашей семьи

Читать полностью

    Для того, чтобы купить 1-этажный коттедж по адресу: Белогорск, Стрелка пер., 19, позвоните по телефону +7 (914) 390-06-92. Торопитесь! Объявление №50016519107 о продаже одноэтажного коттеджа опубликовано 10 ноября 2025.

    Позвонить Написать
    7 800 000 Р95 960 $ или 82 810
    Агент
    +7 (914) 390-06-92
    Начать чат с агентом
    Похожие предложения
    Дом в Амурская область, Благовещенский район, с. Волково Школьный пер. ... - Фото 1
    Дом в Амурская область, Благовещенский район, с. Волково Школьный пер. ... - Фото 2
    1 этаж, общая площадь 84м², участок 8 соток

    Арт.Дoм для вaшeй ceмьи тeплo, кoмфорт и надёжноcть Дом из красного кирпича в микрорайоне Зеленый остров , площадь дома 84 кв.м , земельный участок 8.5 соток. Септик 5 кубов. Скважины 19-20 метров. Дома на возвышенности -15 метров песок , потом 4 м...
    • 1 эт.
    • 84 м²
    • 8 сот.
    7 790 000 Р
    Агент
    +7 (914) Показать номер
    Посмотреть контакты
    Дом в Амурская область, Благовещенск Аллюр СНТ, 68 (76 м) - Фото 1
    Дом в Амурская область, Благовещенск Аллюр СНТ, 68 (76 м) - Фото 2
    1 этаж, общая площадь 76м², участок 6 соток

    Продается современный дом площадью 76 кв.м. с собственной баней ( площадь с баней), построенный в 2020 году. Объект расположен на ухоженном участке размером 6.5 соток в престижном и экологически благополучном районе рядом с конным клубом Аллюр . Местность...
    • 1 эт.
    • 76 м²
    • 6 сот.
    7 700 000 Р
    Агент
    +7 (914) Показать номер
    Посмотреть контакты
    Дом в Амурская область, Благовещенский район, с. Чигири Центральная ... - Фото 1
    Дом в Амурская область, Благовещенский район, с. Чигири Центральная ... - Фото 2
    1 этаж, общая площадь 65м², участок 5 соток

    Арт.. Предлагается к продаже современный дом из газобетона . Дом подходит для комфортного проживания семьи и соответствует требованиям **госпрограмм (Дальневосточная ипотека и др.)**.**Коммуникации:** Собственный **септик 6 м** (автономная канализация)...
    • 1 эт.
    • 65 м²
    • 5 сот.
    7 700 000 Р
    Агент
    +7 (914) Показать номер
    Посмотреть контакты
    Дом в Амурская область, Благовещенский район, с. Волково ул. Ленина, ... - Фото 1
    Дом в Амурская область, Благовещенский район, с. Волково ул. Ленина, ... - Фото 2
    2 этажа, общая площадь 142м², участок 8 соток

    Продаем кирпичный дом в с. Волково, очень выгодно расположен в самом начале села по ул.Ленина, подъезд к дому по асфальту. Подходит под Дальневосточную и семейную ипотеку. Дом построен из кирпича в 2 этажа общей площадью 142,8 кв.м.На 1 этаже находится...
    • 2 эт.
    • 142 м²
    • 8 сот.
    7 840 000 Р
    Агент
    +7 (914) Показать номер
    Посмотреть контакты
    Дом в Амурская область, Благовещенский район, с. Волково ул. ... - Фото 1
    Дом в Амурская область, Благовещенский район, с. Волково ул. ... - Фото 2
    1 этаж, общая площадь 84м², участок 8 соток

    Арт.. Дом площадью 84 м2, на участке земли 8.5 соток, находится в с. Волково, в районе улицы Тихая.Дорога в город занимает всего 17 минут по новому мосту до улицы Горького- Фундамент - ротсверк сваи 350мм, лента 400 на 450 мм- Стены - кирпич, ППС 17см,...
    • 1 эт.
    • 84 м²
    • 8 сот.
    7 890 000 Р
    Агент
    +7 (914) Показать номер
    Посмотреть контакты

    Не нашли подходящего объявления?

    Оставьте заявку, и наши риэлторы подберут купить дом в районе Белогорска

    (0)