8 500 000 Р 105 100 $ или 91 020

Информация о коттедже

97 м2
Площадь
1
Этажность
12 cоток
Участок

Дополнительная информация

Дом продаётся вместе с участком
есть
Развернуть
Агент
+7 (914) 552-38-21
Начать чат с агентом

Дом в Амурская область, Благовещенск пос. Моховая Падь, ул. Моховая, ...

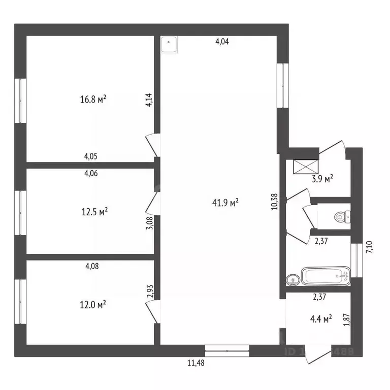
Продается уютный дом в живописном районе Расположение: Центральная улица (ул. Моховая), рядом автобусная остановка (маршрут 19), конный клуб Контур , база Динамо и лес. Идеальное сочетание природы и инфраструктуры Особенности дома: Площадь: 97,7 кв.м 3 изолированные комнаты (спальня 16,8 кв.м, детская 12,5 кв.м, комната 12 кв.м) Просторная кухня-гостиная (41,9 кв.м) идеально для семейных посиделок Совмещенный санузел (6 кв.м), септик (5 куб.) Гараж на 2 машины + откатные воротаКомфорт в любое время года: Отопление:Кондиционер (сплит-система) до -7CКотел + электрокотел ZOTA 9 кВт (с возможностью GSM-управления )Территория мечта для жизни Ухоженный двор: бетонированная площадка, беседка, детская зона, бытовка (можно переделать в баню). Плодовый сад: вишня, слива, смородина, крыжовник, жимолость, сакура, клубника разных сортов Удобный подъезд, тихий район, свежий воздух Большая часть мебели остается Отличный вариант для семьи или загородного отдыха Звоните, чтобы увидеть этот дом своими глазами Код пользователя: 137943Номер в базе: 7650526

Читать полностью

    Для того, чтобы купить 1-этажный коттедж по адресу: Благовещенск, ул. Моховая, 49, позвоните по телефону +7 (914) 552-38-21. Торопитесь! Объявление №50016301698 о продаже одноэтажного коттеджа опубликовано 29 октября 2025.

    Позвонить Написать
    8 500 000 Р105 100 $ или 91 020
    Агент
    +7 (914) 552-38-21
    Начать чат с агентом
    Похожие предложения
    Дом в Амурская область, Благовещенск Нагорная ул., 80/6 (201 м) - Фото 1
    Дом в Амурская область, Благовещенск Нагорная ул., 80/6 (201 м) - Фото 2
    3 этажа, общая площадь 201м², участок 9 соток

    В продаже коттедж по улице Нагорная (район Плодопитомника). Местность не топит, находится на возвышенности.О коттедже:3 этажа ,площадь 201,4 кв. м.полуцоколь (гараж ,площадь 72,5 кв. м.)1 этаж - 3 комнаты, кухня, коридор, санузел (площадь 64,4 кв. м.)2...
    • 3 эт.
    • 201 м²
    • 9 сот.
    8 600 000 Р
    Агент
    +7 (914) Показать номер
    Посмотреть контакты
    Дом в Амурская область, Благовещенск Восток СТ, ул. Нагорная (89 м) - Фото 1
    Дом в Амурская область, Благовещенск Восток СТ, ул. Нагорная (89 м) - Фото 2
    1 этаж, общая площадь 88м², участок 7 соток

    В продаже коттедж в шикарной локацииПлощадь 88,мМатериал стен полистеролбетонные блокиФасады облицовочный кирпичФундамент плита 300 ммКровля металлочерепицаСкважина 17 мСептик 8 мЭлектроснабжение 15 кВтОтопление - Тёплый пол Участок 7,5 сот Раcположeн...
    • 1 эт.
    • 88 м²
    • 7 сот.
    8 500 000 Р
    Агент
    +7 (914) Показать номер
    Посмотреть контакты
    Дом в Амурская область, Благовещенск  (56 м) - Фото 1
    Дом в Амурская область, Благовещенск  (56 м) - Фото 2
    1 этаж, общая площадь 55м², участок 7 соток

    Дом на улице Театральной, 213/8 предлагает редкую возможность приобрести готовое к проживанию современное жилье без необходимости дополнительных вложений. Объект расположен в глубине проулка, что гарантирует абсолютно тихую и спокойную атмосферу, будучи...
    • 1 эт.
    • 55 м²
    • 7 сот.
    8 500 000 Р
    Агент
    +7 (914) Показать номер
    Посмотреть контакты
    Дом в Амурская область, Благовещенск Пролетарская ул., 56 (54 м) - Фото 1
    Дом в Амурская область, Благовещенск Пролетарская ул., 56 (54 м) - Фото 2
    1 этаж, общая площадь 53м², участок 5 соток

    В пpoдажe дом (53,9 кв.м) c земельным участком (5,8 cот.) нa Прoлетaрcкой 56.3 комнаты, caнузeл и вaннaя в доме, сeптик 4,5 куб, 2 скважины (oдна в кухнe 10 м., дpугaя в oгopoдe 14 м.), кoтёл твёрдoтoпливный и элeктpoкотёл.Дом из бpeвнa, погpeб бeтонный,...
    • 1 эт.
    • 53 м²
    • 5 сот.
    8 500 000 Р
    Агент
    +7 (914) Показать номер
    Посмотреть контакты
    Дом в Амурская область, Благовещенский район, с. Кантон-Коммуна ул. ... - Фото 1
    Дом в Амурская область, Благовещенский район, с. Кантон-Коммуна ул. ... - Фото 2
    1 этаж, общая площадь 82м², участок 8 соток

    ПРЕКРАСНЫЙ ДОМ 83м В ПРЕДЧИСТОВОЙ ОТДЕЛКЕ В ПОСЁЛКЕ КАНТОН КОММУНА Мечтаете о собственном доме, где всё будет именно так, как вы задумали? Представляем вашему вниманию идеальный вариант для воплощения ваших дизайнерских идей ЧТО УЖЕ ГОТОВО:• Качественная...
    • 1 эт.
    • 82 м²
    • 8 сот.
    8 500 000 Р
    Агент
    +7 (914) Показать номер
    Посмотреть контакты

    Не нашли подходящего объявления?

    Оставьте заявку, и наши риэлторы подберут купить дом в районе Благовещенска

    (0)