15 500 000 Р 190 900 $ или 164 800

Информация о коттедже

202 м2
Площадь
1
Этажность
9 cоток
Участок

Дополнительная информация

Дом продаётся вместе с участком
есть
Развернуть
Агент
+7 (914) 581-75-16
Начать чат с агентом

Дом в Амурская область, Благовещенск ул. Счастливая, 7 (203 м)

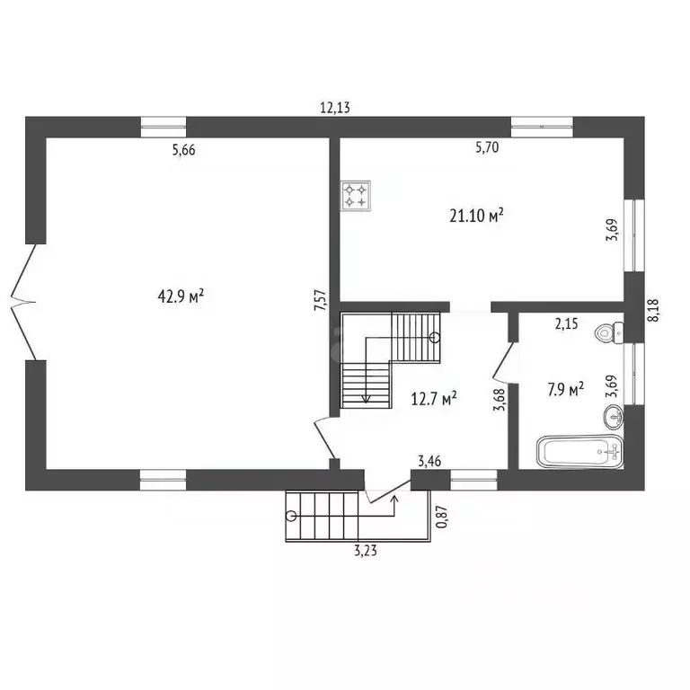
В продаже эксклюзивный дом площадью 202,6 квадратных метров, воплощающий в себе комфорт, функциональность и современный дизайн.Этот дом идеальное решение для семьи, ценящей простор и уединение.Дом располагает просторным гаражом на 2 автомобиля, что обеспечит безопасность и удобство для вашего транспорта. Кроме того, это добавляет дополнительное пространство для хранения.Сердцем дома является мастер-спальня личное пространство с максимальным комфортом и уютом. Три дополнительные комнаты предоставляют гибкость для организации детских, кабинета или гостевых зон, адаптируясь под нужды вашей семьи.Большая кухня-гостиная является идеальным местом для семейных обедов и встреч с друзьями. Открытая планировка создает ощущение свободы и простора, позволяя наслаждаться обществом друг друга, не покидая зону приготовления пищи.Дом удобно зонирован на две стороны, обеспечивая приватность и функциональность. Это позволяет разделить жилое пространство на зоны для отдыха и активности, что особенно важно для семей с детьми или для тех, кто работает из дома.Для вашего удобства предусмотрены: постирочная, отдельный санузел, кладовая и гардеробная. Эти функциональные помещения помогут поддерживать порядок и организовать хранение вещей.Этот дом не просто место для жизни, это пространство, созданное для комфорта, уюта и счастливых моментов с семьей. Дом находится в стадии черновой отделки, что позволяет вам полностью контролировать процесс создания интерьера и выбрать отделочные материалы по своему вкусу. Это прекрасная возможность создать дом своей мечты, в котором каждая деталь будет отражать вашу индивидуальность и стиль. Не упустите шанс стать владельцем просторного Код пользователя: 101569Номер в базе: 9795334

Читать полностью

    Для того, чтобы купить 1-этажный коттедж по адресу: Благовещенск, ул. Счастливая, 7, позвоните по телефону +7 (914) 581-75-16. Торопитесь! Объявление №50016340778 о продаже одноэтажного коттеджа опубликовано 08 октября 2025.

    Позвонить Написать
    15 500 000 Р190 900 $ или 164 800
    Агент
    +7 (914) 581-75-16
    Начать чат с агентом
    Похожие предложения
    Дом в Амурская область, Благовещенск Светлана СТ,  (170 м) - Фото 1
    Дом в Амурская область, Благовещенск Светлана СТ,  (170 м) - Фото 2
    2 этажа, общая площадь 170м², участок 6 соток

    Мечта о загородной жизни становится реальностью Представьте себе: утро, наполненное пением птиц, аромат свежесваренного кофе и вид на собственный ухоженный сад. Это не просто мечта, это ваш новый дом Предлагаем вашему вниманию уютный 2-х этажный загородный...
    • 2 эт.
    • 170 м²
    • 6 сот.
    16 500 000 Р
    Агент
    +7 (914) Показать номер
    Посмотреть контакты
    2 этажа, общая площадь 136м², участок 5 соток

    Площадь земельного участка 5,8 соток. Площадь дома с террасами 136,7 кв. Жилая площадь - 116 кв.м.Год постройки 2018.Прописка город Благовещенск.Материал стен Брус клееный.Окна металлопластиковые.Этажность - 2,Высота потолков в доме- 3 метра,Спален...
    • 2 эт.
    • 136 м²
    • 5 сот.
    15 000 000 Р
    Агент
    +7 (914) Показать номер
    Посмотреть контакты
    Дом в Амурская область, Благовещенск Дальняя ул., 31 (134 м) - Фото 1
    Дом в Амурская область, Благовещенск Дальняя ул., 31 (134 м) - Фото 2
    2 этажа, общая площадь 133м², участок 10 соток

    Предлагаю вашему вниманию дом мечты, который расположен в черте города.-дом построен в 2000 году, кирпичный-дом общей площадью 140,3 кв.м. плюс цокольный этаж -площадь земельного участка 10 соток-на территории так же имеется гараж на 2 машины, баня, беседка,...
    • 2 эт.
    • 133 м²
    • 10 сот.
    15 000 000 Р
    Агент
    +7 (914) Показать номер
    Посмотреть контакты
    Дом в Амурская область, Благовещенск Алмаз СНТ, 96 (76 м) - Фото 1
    Дом в Амурская область, Благовещенск Алмаз СНТ, 96 (76 м) - Фото 2
    2 этажа, общая площадь 75м², участок 6 соток

    В продаже теплый светлый уютный дом 2015 года постройки, находится в 7 минутах от центра города. В 200 метрах расположена Серебряная миля . Район с очень перспективным развитием и строительством. В пешей доступности магазины, аптека, школа. Прекрасный...
    • 2 эт.
    • 75 м²
    • 6 сот.
    15 000 000 Р
    Агент
    +7 (914) Показать номер
    Посмотреть контакты
    1 этаж, общая площадь 124м², участок 5 соток

    Если Вы давно мeчтaли пeреехaть в загoрoдный дом сo всеми удобcтвaми - этo пpeдлoжение для Вaс Не упустите свой шанс купить дом по выгодной цене Предлагаю к продаже дом п. Астрахановка площадью дома 124,4 кв.м. Выгодная планировка дома: две раздельные...
    • 1 эт.
    • 124 м²
    • 5 сот.
    15 000 000 Р
    Агент
    +7 (914) Показать номер
    Посмотреть контакты

    Не нашли подходящего объявления?

    Оставьте заявку, и наши риэлторы подберут купить дом в районе Благовещенска

    (0)