Россия, Амурская область, Благовещенск, Зея Парк жилой комплекс, 4
5 241 805 Р 64 530 $ или 55 860

Информация о квартире

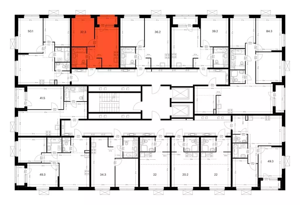
32 м2
Площадь
9 м2
Жилая
13 м2
Кухня
1
Комната
10
Этаж
16
Этажность

Дополнительная информация

Тип дома
монолит
Развернуть
Агент
+7 (984) 729-73-69
Начать чат с агентом

1-к кв. Амурская область, Благовещенск Зея Парк жилой комплекс, 4 ...

Продаётся 1-комн. квартира площадью 32,3 кв.м на 10 этаже 16 этажного дома (Корпус 4, Секция 1) проекта ПИК Зея парк. Светлый просторный подъезд на уровне земли, функциональная планировка, большие окна, без отделки. Зея парк - новый квартал со всем необходимым для комфортной жизни. До центра Благовещенска - 15 минут. Внутри Зея парка много места для тихих прогулок и активного отдыха. В каждом дворе будет парк с детскими и спортивными площадками. Рядом с домами пройдёт широкий пешеходный бульвар, где мы установим удобные скамейки и высадим кустарники и цветы и взрослые деревья. В квартиры и дворы сможет беспрепятственно проникать солнце благодаря переменной высоте корпусов - 9 и 16 этажей. В домах будут просторные и светлые подъезды с дизайнерской отделкой, витражным остеклением и двумя выходами на уровне земли: во двор и на улицу. В квартирах большие окна, застеклённые балконы и лоджии — будет светло и уютно даже зимой. Все квартиры сдаются с предчистовой отделкой: самые грязные и шумные работы к моменту выдачи ключей уже закончатся. На первых этажах домов разместятся магазины, кафе и другие сервисы, а на подземных — индивидуальные кладовые. В 1013 минутах пути на машине — парк Дружбы, аквапарк Плаза и ТРЦ Острова . Рядом с жилым кварталом есть автобусная остановка, от которой можно добраться в любую часть города. Артикул 887842 (Застройщик ООО СЗ ПИК Благовещенск )

Читать полностью
    Позвонить Написать
    5 241 805 Р64 530 $ или 55 860
    Агент
    +7 (984) 729-73-69
    Начать чат с агентом
    Похожие предложения
    Квартира-студия: Благовещенск, Заводская улица, 4 (22.49 м) - Фото 1
    Квартира-студия: Благовещенск, Заводская улица, 4 (22.49 м) - Фото 2
    студия, общая площадь 22м², жилая 10м²

    Код объекта: 1901984.Идеальное предложение для жизни и инвестицийАдрес: Заводская улица, 4/9, БлаговещенскПочему стоит выбрать эту квартиру?- Выгодная цена: отличное предложение на рынке недвижимости Благовещенска.- Удобное расположение: развитая инфраструктура...
    • 22 м²
    • студия-ком
    • 12/14 эт.
    5 240 170 Р
    Агент
    +7 (909) Показать номер
    Посмотреть контакты
    1-к кв. Амурская область, Благовещенск  (35.1 м) - Фото 1
    1-к кв. Амурская область, Благовещенск  (35.1 м) - Фото 2
    1-комнатная квартира, общая площадь 35м²

    Продаётся 1-комнатная квартира в строящемся доме (1 этап), срок сдачи: I-кв. 2026, общей площадью 35.1 кв.м., на 2 этаже. Новый жилой комплекс Европейский квартал от застройщика Благовещенскстрой
    • 35 м²
    • 1-ком
    • 2/9 эт.
    • кирпичный
    5 107 927 Р
    Агент
    +7 (800) Показать номер
    Посмотреть контакты
    1-к кв. Амурская область, Благовещенск  (38.4 м) - Фото 1
    1-к кв. Амурская область, Благовещенск  (38.4 м) - Фото 2
    1-комнатная квартира, общая площадь 38м²

    Продаётся 1-комнатная квартира в строящемся доме (1 этап), срок сдачи: I-кв. 2026, общей площадью 38.4 кв.м., на 6 этаже. Новый жилой комплекс Европейский квартал от застройщика Благовещенскстрой
    • 38 м²
    • 1-ком
    • 6/9 эт.
    • кирпичный
    5 232 960 Р
    Агент
    +7 (800) Показать номер
    Посмотреть контакты
    1-к кв. Амурская область, Благовещенск Зея Парк жилой комплекс, 3 ... - Фото 1
    1-к кв. Амурская область, Благовещенск Зея Парк жилой комплекс, 3 ... - Фото 2
    1-комнатная квартира, общая площадь 32м², жилая 9м², кухня 15м²

    Продаётся 1-комн. квартира площадью 32,5 кв.м на 9 этаже 9 этажного дома (Корпус 3, Секция 1) проекта ПИК Зея парк. Светлый просторный подъезд на уровне земли, функциональная планировка, большие окна, без отделки. Зея парк - новый квартал со всем необходимым...
    • 32 м²
    • 1-ком
    • 9/9 эт.
    • монолит
    5 174 520 Р
    Агент
    +7 (984) Показать номер
    Посмотреть контакты
    Студия Амурская область, Благовещенск Лазурный Берег жилой комплекс ... - Фото 1
    Студия Амурская область, Благовещенск Лазурный Берег жилой комплекс ... - Фото 2
    студия, общая площадь 32м², жилая 27м²

    Продаётся студия в строящемся доме (Литер 2, этап 2), срок сдачи: IV-кв. 2026, общей площадью 32.09 кв.м., на 2 этаже. Лазурный берегасположился прямо на берегу большой реки, на участке изрезанной, неправильной формы, что в итоге становится преимуществом:...
    • 32 м²
    • студия-ком
    • 2/15 эт.
    • кирпичный
    5 294 850 Р
    Агент
    +7 (984) Показать номер
    Посмотреть контакты

    Не нашли подходящего объявления?

    Оставьте заявку, и наши риэлторы подберут квартиру в новостройке в районе Благовещенска

    (0)