Россия, Амурская область, Благовещенск, Зейский Бульвар жилой комплекс

Реализация объекта недвижимости приостановлена

Информация о квартире

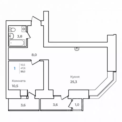
50.0 м2
Площадь
1
Комната
14
Этаж
14
Этажность

Дополнительная информация

Тип дома
кирпичный
Развернуть

1-к кв. Амурская область, Благовещенск Зейский Бульвар жилой комплекс ...

Продаётся 1-комнатная квартира в строящемся доме (Корпус 1), срок сдачи: IV-кв. 2025, общей площадью 50.1 кв.м., на 14 этаже. Новый жилой комплекс Зейский бульвар от застройщика Амурстрой

Читать полностью

    Реализация объекта недвижимости приостановлена

    Не нашли подходящего объявления?

    Оставьте заявку, и наши риэлторы подберут квартиру в новостройке в районе Благовещенска

    (0)