8 900 000 Р 112 900 $ или 97 030

Информация о квартире

52 м2
Площадь
8 м2
Кухня
2
Комнаты
2
Этаж
5
Этажность

Дополнительная информация

Тип дома
панельный
Развернуть
Агент
+7 (914) 571-27-04
Начать чат с агентом

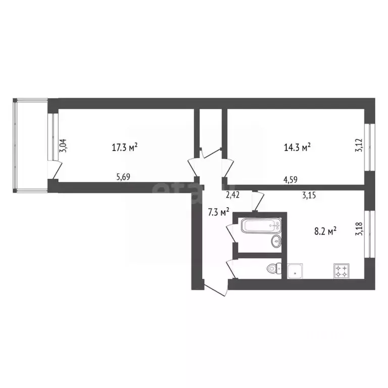
2-к кв. Амурская область, Благовещенск Зейская ул., 113 (52.0 м)

Предлагается к продаже, двухкомнатная квартира общей площадью 51.7 м расположена на втором этаже пятиэтажного дома.Объект отличается выгодным местоположением: в шаговой доступности находятся набережная, остановки общественного транспорта, отделение почты, магазины, а также вся необходимая социальная инфраструктура — детский сад, школы 5 и 12, детская и взрослая поликлиники. Планировка практичная и продуманная: две изолированные комнаты жилой площадью 31.6 м, что обеспечивает комфортное проживание для семьи, и кухня 8.2 м.Санузел раздельный, что добавляет удобства в повседневной жизни. В квартире выполнен свежий косметический ремонт. Ключевым преимуществом является наличие функциональной гардеробной зоны для организации систем хранения. Окна выходят как на тихий двор, так и на улицу, обеспечивая хорошую инсоляцию и проветривание помещений. Высота потолков составляет 2.5 метра. Во дворе обустроена ухоженная и спокойная детская площадка для отдыха. Квартира полностью готова к заселению, не имеет обременений, а вся сумма сделки указывается в договоре. Это надежное и выгодное вложение в недвижимость с высоким потенциалом для комфортной жизни в развитом районе с развитой транспортной и социальной инфраструктурой.Компания Этажи обеспечивает полное юридическое сопровождение сделки, включая консультации по ипотечному кредитованию с выгодными условиями от партнерских банков, ускоренное рассмотрение заявок и помощь в подаче документов в МФЦ для регистрации права собственности. Все этапы оформления можно завершить в одном офисе, экономя время и минимизируя риски. Код пользователя: 183306Номер в базе: 9812733

Читать полностью

    Для того, чтобы купить двухкомнатную квартиру по адресу: Благовещенск, ул. Зейская, 113, позвоните по телефону +7 (914) 571-27-04. Торопитесь! Объявление №30090276022 о продаже двухкомнатной квартиры опубликовано Вчера.

    Позвонить Написать
    8 900 000 Р112 900 $ или 97 030
    Агент
    +7 (914) 571-27-04
    Начать чат с агентом
    Похожие предложения
    2-к кв. Амурская область, Благовещенск Зейская ул., 63 (71.4 м) - Фото 1
    2-к кв. Амурская область, Благовещенск Зейская ул., 63 (71.4 м) - Фото 2
    2-комнатная квартира, общая площадь 71м², кухня 12м²

    Продается 2-к квартира в центре города. Дом 2006г постройки. Площадь 71.4 м/2, 5/5 этаж, комнаты не проходные, светлые, просторные, высокие потолки. Санузел раздельный, ремонт имеется, продается без мебели. Уютный и чистый подьезд. В хорошем районе с...
    • 71 м²
    • 2-ком
    • 5/5 эт.
    • кирпичный
    8 950 000 Р
    Агент
    +7 (914) Показать номер
    Посмотреть контакты
    2-к кв. Амурская область, Благовещенск Зейская ул., 61/1 (62.9 м) - Фото 1
    2-к кв. Амурская область, Благовещенск Зейская ул., 61/1 (62.9 м) - Фото 2
    2-комнатная квартира, общая площадь 62м², кухня 9м²

    В продаже просторная 2-к квартира, площадью 62,9 кв.м., расположенная на комфортном 4 этаже.Планировка данной квартиры продумана для комфортного проживания: изолированные комнаты, раздельный санузел, вместительная прихожая и кухня, что делает квартиру...
    • 62 м²
    • 2-ком
    • 4/9 эт.
    • кирпичный
    9 000 000 Р
    Агент
    +7 (914) Показать номер
    Посмотреть контакты
    1-к кв. Амурская область, Благовещенск Зейская ул., 222 (50.8 м) - Фото 1
    1-к кв. Амурская область, Благовещенск Зейская ул., 222 (50.8 м) - Фото 2
    1-комнатная квартира, общая площадь 50м², кухня 10м²

    Продаётся уютная 1-комнатная квартира площадью 50.8 кв.м на 12 этаже 18-ти этажного монолитного дома.Светлая и просторная комната площадью 30 кв.м вмещает двуспальную кровать Лацио с подъемным механизмом, большой угловой диван, который раскладывается...
    • 50 м²
    • 1-ком
    • 12/18 эт.
    • кирпичный
    8 900 000 Р
    Агент
    +7 (914) Показать номер
    Посмотреть контакты
    4-к кв. Амурская область, Благовещенск Свободная ул., 261 (70.0 м) - Фото 1
    4-к кв. Амурская область, Благовещенск Свободная ул., 261 (70.0 м) - Фото 2
    4-комнатная квартира, общая площадь 70м², кухня 8м²

    В продаже просторная четырёх комнатная квартира 70 кв м.В квартире выполнен косметический ремонт.Новому хозяину остаётся мебель, техника, всё, что нужно для личного проживания или под сдачу в аренду. Квартира тёплая, светлая, планировка на три стороны...
    • 70 м²
    • 4-ком
    • 5/5 эт.
    • панельный
    9 000 000 Р
    Агент
    +7 (914) Показать номер
    Посмотреть контакты
    3-к кв. Амурская область, Благовещенск ул. Муравьева-Амурского, 17 ... - Фото 1
    3-к кв. Амурская область, Благовещенск ул. Муравьева-Амурского, 17 ... - Фото 2
    3-комнатная квартира, общая площадь 74м², кухня 10м²

    Продается светлая 3-комнатная квартира 74 м в кирпичном доме Просторная планировка: Удобное зонирование комнат (74 кв.м.)Сделан косметический ремонт готовы к заезду Надежный дом: Кирпичные стены тепло, тихо, долговечно. Есть лоджия (в данный момент...
    • 74 м²
    • 3-ком
    • 2/3 эт.
    • кирпичный
    9 000 000 Р
    Агент
    +7 (914) Показать номер
    Посмотреть контакты

    Не нашли подходящего объявления?

    Оставьте заявку, и наши риэлторы подберут квартиру в районе Благовещенска

    (0)