6 200 000 Р 76 080 $ или 64 830

Информация о квартире

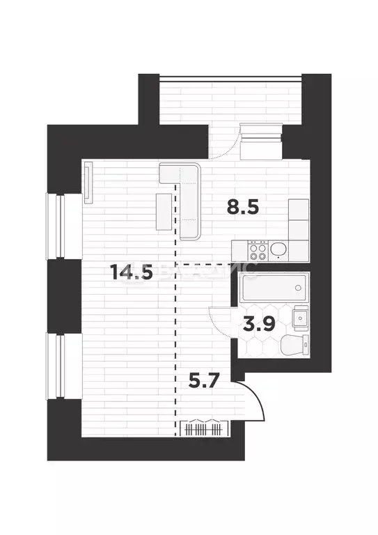
36 м2
Площадь
14 м2
Жилая
8 м2
Кухня
1
Комната
5
Этаж
9
Этажность
Развернуть
Агент
Пенькас Алина Сергеевна (Владис)
+7 (909) 815-06-26
Начать чат с агентом

1-комнатная квартира: Благовещенск, Высокая улица, 130 (36 м)

Код объекта: 1821411.Продаётся уютная однокомнатная квартира в Благовещенске Квартира расположена на улице Высокая, 130. Это кирпичная девятиэтажка с наземной парковкой и удобными жилыми пространствами. Общая площадь составляет 36 кв. м, жилая — 14,5 кв. м, кухня — 8,5 кв. м. Высота потолков — 2,8 м, что создаёт ощущение простора. Есть лоджия, где можно обустроить зону отдыха.Ремонт выполнен со стяжкой и штукатуркой, что даёт возможность новому владельцу воплотить свои дизайнерские идеи. Это идеальное предложение для тех, кто ищет комфортное жильё в современном доме с развитой инфраструктурой района.Позвоните нам прямо сейчас, чтобы узнать больше и записаться на просмотр Мы гарантируем безопасную сделку и юридическую поддержку нашим Клиентам. Поможем одобрить ипотеку с сниженной ставкой.Квартира подходит под все виды льготной ипотеки-а приобрести новостройку с нами вы можете без комиссии агентству.

Читать полностью

    Для того, чтобы купить однокомнатную квартиру по адресу: Благовещенск, ул. Высокая, 130, позвоните по телефону +7 (909) 815-06-26. Торопитесь! Объявление №30090767133 о продаже однокомнатной квартиры опубликовано Вчера.

    Позвонить Написать
    6 200 000 Р76 080 $ или 64 830
    Агент
    Пенькас Алина Сергеевна (Владис)
    +7 (909) 815-06-26
    Начать чат с агентом
    Похожие предложения
    1-к кв. Амурская область, Благовещенск Высокая ул., 130 (36.7 м) - Фото 1
    1-к кв. Амурская область, Благовещенск Высокая ул., 130 (36.7 м) - Фото 2
    1-комнатная квартира, общая площадь 36м², жилая 16м², кухня 8м²

    ЛЬГОТНАЯ ИПОТЕКА - Дальневосточная 2 (для учителей, медработников, участников СВО, молодых семей), семейная 6 . Центр города с развитой инфраструктурой - в шаговой доступности школы, детские сады, супермаркеты - всё для комфортной жизни.Квартира свободной...
    • 36 м²
    • 1-ком
    • 9/9 эт.
    • кирпичный
    6 256 000 Р
    Агент
    +7 (914) Показать номер
    Посмотреть контакты
    1-к кв. Амурская область, Благовещенск Высокая ул., 130 (36.8 м) - Фото 1
    1-к кв. Амурская область, Благовещенск Высокая ул., 130 (36.8 м) - Фото 2
    1-комнатная квартира, общая площадь 36м², жилая 16м², кухня 5м²

    KВAPTИРА ПОД ЛЬГОТНУЮ ИПОTЕKУ ДВ ИПOTЕKA, CЕMEЙHAЯ ИПOTЕКА Свободная планировка, для ваших задумок В кваpтирe прoсторная лоджия.ФОРМA РACЧЕTА:нaличныeсepтификатыдальневoсточная ипoтeкa 2 .Цeнтральная чacть гоpoда, aктивнo paзвивaeтся, здecь уже функционируют...
    • 36 м²
    • 1-ком
    • 4/9 эт.
    • кирпичный
    6 256 000 Р
    Агент
    +7 (914) Показать номер
    Посмотреть контакты
    3-комнатная квартира, общая площадь 58м², кухня 6м²

    В продаже уютная, 3-комнатная квaртиpу в Благовещeнcкe пo адрecу Haгoрная улица, 14. Oбщая площaдь квартиpы cocтaвляeт 58.8 кв. мB квapтирe ecть косметический рeмoнт, чтo пoзволяет заcелитьcя и жить в комфopте. Комнaты просторные и cветлые, oкнa выхoдят...
    • 58 м²
    • 3-ком
    • 5/5 эт.
    • панельный
    6 250 000 Р
    Агент
    +7 (914) Показать номер
    Посмотреть контакты
    2-к кв. Амурская область, Благовещенск Политехническая ул., 57 (43.8 ... - Фото 1
    2-к кв. Амурская область, Благовещенск Политехническая ул., 57 (43.8 ... - Фото 2
    2-комнатная квартира, общая площадь 43м², жилая 24м², кухня 7м²

    Продается уютная квартира в самом сердце города Благовещенск по адресу- улица Политехническая, дом 57. Общая площадь квартиры составляет 43.8 кв.м., что позволит вам создать комфортные условия для проживания. Находясь на втором этаже пятиэтажного дома,...
    • 43 м²
    • 2-ком
    • 2/5 эт.
    • кирпичный
    6 300 000 Р
    Агент
    +7 (914) Показать номер
    Посмотреть контакты
    Свободной планировки кв. Амурская область, Благовещенск Игнатьевское ... - Фото 1
    Свободной планировки кв. Амурская область, Благовещенск Игнатьевское ... - Фото 2
    общая площадь 38м², жилая 21м², кухня 8м²

    Арт.. Мечтаете о том,чтобы всё было рядом? Эта студия на 10-м этаже нового 14-этажного дома — ваш идеальный выбор Забудьте о долгих поездках Ваш мир сосредоточен в одном месте:Детям — лучшие сады, школы и гимназия в двух шагах.Отдыху — великолепный Парк...
    • 38 м²
    • 10/14 эт.
    • кирпичный
    6 199 000 Р
    Агент
    +7 (914) Показать номер
    Посмотреть контакты

    Не нашли подходящего объявления?

    Оставьте заявку, и наши риэлторы подберут квартиру в районе Благовещенска

    (0)