6 000 000 Р 73 580 $ или 63 200

Информация о квартире

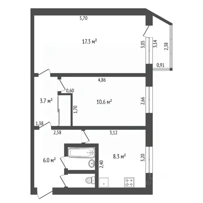
50 м2
Площадь
9 м2
Кухня
2
Комнаты
5
Этаж
5
Этажность

Дополнительная информация

Тип дома
панельный
Развернуть
Агент
Римма Владимировна Викарчук (ЭТАЖИ Благовещенск)
+7 (914) 590-64-45
Начать чат с агентом

2-к кв. Амурская область, Благовещенск ул. Мухина, 87 (50.2 м)

Просторная квартира с рациональной планировкой расположена в престижном районе в шаговой доступности от ТЦ Острова . Объект характеризуется абсолютно чистой юридической историей и одним совершеннолетним собственником. Жилые комнаты изолированные, не являются проходными, что обеспечивает комфортное проживание. Квартира находится в хорошем эксплуатационном состоянии: установлена новая входная группа, повсеместно заменены инженерные коммуникации на современные полипропиленовые трубы. Перспективным преимуществом является потенциал для увеличения жилой площади за счет демонтажа легкой гардеробной конструкции и присоединения части коридора, поскольку межкомнатные перегородки не являются несущими. Это открывает возможности для создания современного жилого пространства по индивидуальному проекту. Дом содержится в отличном состоянии — недавно завершен капитальный ремонт кровли и обновлены общественные зоны подъезда с установленными теплыми окнами. Прилегающая территория благоустроена, огорожена и оборудована системой видеонаблюдения, обеспечивая безопасность и тишину. Район отличается развитой инфраструктурой и отличной транспортной доступностью. Объект готов к немедленному косметическому ремонту и вселению, представляя собой выгодное вложение в недвижимость с высоким потенциалом увеличения стоимости. Код пользователя: 175123Номер в базе: 9911362

Читать полностью

    Для того, чтобы купить двухкомнатную квартиру по адресу: Благовещенск, ул. Мухина, 87, позвоните по телефону +7 (914) 590-64-45. Торопитесь! Объявление №30090811280 о продаже двухкомнатной квартиры опубликовано Вчера.

    Позвонить Написать
    6 000 000 Р73 580 $ или 63 200
    Агент
    Римма Владимировна Викарчук (ЭТАЖИ Благовещенск)
    +7 (914) 590-64-45
    Начать чат с агентом
    Похожие предложения
    2-комнатная квартира, общая площадь 50м², жилая 36м², кухня 9м²

    Просторная квартира с рациональной планировкой расположена в престижном районе в шаговой доступности от ТЦ «Острова . Объект характеризуется абсолютно чистой юридической историей и одним совершеннолетним собственником. Жилые комнаты изолированные, не...
    • 50 м²
    • 2-ком
    • 5/5 эт.
    6 000 000 Р
    Агент
    +7 (914) Показать номер
    Посмотреть контакты
    1-к кв. Амурская область, Благовещенск ул. Мухина, 89 (35.3 м) - Фото 1
    1-к кв. Амурская область, Благовещенск ул. Мухина, 89 (35.3 м) - Фото 2
    1-комнатная квартира, общая площадь 35м², кухня 5м²

    Продается однокомнатная квартира площадью 35,3 кв. м с качественным ремонтом и полной меблировкой, на 1 этаже, готовая к заселению. Все окна выходят на южную сторону, обеспечивая постоянное естественное освещение и инсоляцию в течение дня. Квартира полностью...
    • 35 м²
    • 1-ком
    • 1/5 эт.
    • панельный
    5 990 000 Р
    Агент
    +7 (914) Показать номер
    Посмотреть контакты
    1-к кв. Амурская область, Благовещенск ул. Василенко, 3 (32.7 м) - Фото 1
    1-к кв. Амурская область, Благовещенск ул. Василенко, 3 (32.7 м) - Фото 2
    1-комнатная квартира, общая площадь 32м², жилая 15м², кухня 10м²

    Друзья, приветствую Вас Акция, продам практически за копейки квартиру в отличном районе. Квартира светлая, чистая, просторная, энергетика в самой квартире просто волшебная Остается все что есть на фото. Район просто подарок, свой выезд на ул. Студенческую,...
    • 32 м²
    • 1-ком
    • 5/15 эт.
    • кирпичный
    6 100 000 Р
    Агент
    +7 (914) Показать номер
    Посмотреть контакты
    1-к кв. Амурская область, Благовещенск Амурская ул., 181 (32.7 м) - Фото 1
    1-к кв. Амурская область, Благовещенск Амурская ул., 181 (32.7 м) - Фото 2
    1-комнатная квартира, общая площадь 32м², кухня 12м²

    Продается уютная 1-комнатная квартира, расположенная в самом сердце города Это идеальное предложение для тех, кто ценит комфорт, удобство и доступность всех благ цивилизации. Квартира находится в районе с развитой инфраструктурой, что делает ее привлекательной...
    • 32 м²
    • 1-ком
    • 3/5 эт.
    • кирпичный
    6 100 000 Р
    Агент
    +7 (914) Показать номер
    Посмотреть контакты
    1-к кв. Амурская область, Благовещенск Студенческая ул., 25 (31.3 м) - Фото 1
    1-к кв. Амурская область, Благовещенск Студенческая ул., 25 (31.3 м) - Фото 2
    1-комнатная квартира, общая площадь 31м², кухня 5м²

    Продаётся уютная однокомнатная квартира, в которой остаётся всё необходимое для проживания заезжай и живи Долгов и обременений нетОчень развита инфраструктура, детские сады, спорт зал, продуктовые магазины, WB, детские площадки, а самое главное НЕТ проблем...
    • 31 м²
    • 1-ком
    • 9/9 эт.
    • панельный
    6 000 000 Р
    Агент
    +7 (914) Показать номер
    Посмотреть контакты

    Не нашли подходящего объявления?

    Оставьте заявку, и наши риэлторы подберут квартиру в районе Благовещенска

    (0)