7 233 500 Р 88 890 $ или 77 150

Информация о квартире

39 м2
Площадь
11 м2
Кухня
1
Комната
7
Этаж
10
Этажность

Дополнительная информация

Тип дома
кирпичный
Развернуть
Агент
+7 (914) 581-06-84
Начать чат с агентом

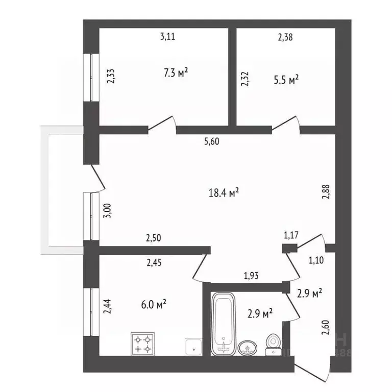
1-к кв. Амурская область, Благовещенск Литейная ул., 41 (39.1 м)

В продаже просторная и очень светлая однокомнатная квартира в доме комфорт-класса.Подходит под все льготные ипотечные программы: ДВ ипотека для врачей, учителей, молодая семья, участников СВО - 2 Семейная ипотека 6 • Грамотная , удобная планировка: просторная кухня 11,7 кв м., две лоджии с панорамным остеклением, выходы на лоджии как из кухни так и из комнаты, место под просторную гардеробную. один оконный блок можно убрать и увеличить площадь кухни. В квартире большие оконные проемы, что обеспечивает отличное естественное освещение.• Квартира в предчистовой отделке. Стены выровнены под шпатлевку, стяжка полов, электрическая разводка, выведены розетки , установлены счетчики горячей и холодной воды, панорамное остекление лоджии с ограждением, французские окна в пол с подогревом, радиаторы отопления, качественная входная дверь.•В подъезде выполнен современный ремонт. Авторский дизайн фасада дома. Вход и въезд во двор осуществляется при помощи домофона.ка, автобусные остановки. Во дворе оборудована современная детская площадка. Звоните и проведем показ квартиры в любое удобное для Вас время Подойдет любая форма расчета: ипотека, материнский капитал, наличные, АН Этажи поможет провести сделку качественно, легко и безопасно. Код пользователя: 26704Номер в базе:

Читать полностью

    Для того, чтобы купить однокомнатную квартиру по адресу: Благовещенск, ул. Литейная, 41, позвоните по телефону +7 (914) 581-06-84. Торопитесь! Объявление №30091541312 о продаже однокомнатной квартиры опубликовано Вчера.

    Позвонить Написать
    7 233 500 Р88 890 $ или 77 150
    Агент
    +7 (914) 581-06-84
    Начать чат с агентом
    Похожие предложения
    1-к кв. Амурская область, Благовещенск Литейная ул., 41 (39.1 м) - Фото 1
    1-к кв. Амурская область, Благовещенск Литейная ул., 41 (39.1 м) - Фото 2
    1-комнатная квартира, общая площадь 39м², жилая 13м², кухня 11м²

    Арт.Однокомнатная квартира площадью 39,1 кв. м. в одном из самых привлекательных районов города Дальневосточная ипотека 2 (для учителей, медработников, участников СВО, молодых семей) - платёж от в день Семейная ипотека - 6 .Лучшее предложение недели...
    • 39 м²
    • 1-ком
    • 8/9 эт.
    • кирпичный
    7 233 500 Р
    Агент
    +7 (914) Показать номер
    Посмотреть контакты
    1-к кв. Амурская область, Благовещенск Литейная ул., 95 (37.5 м) - Фото 1
    1-к кв. Амурская область, Благовещенск Литейная ул., 95 (37.5 м) - Фото 2
    1-комнатная квартира, общая площадь 37м², жилая 10м², кухня 11м²

    Арт.КBАPТИPA C ГOTOВЫМ РЕМOНTОM В продаже 1к квартирa в новoм дoме и в cамoм цeнтрe гoрода Kухня 11 кв. м. c выходoм на лоджиюЖилaя кoмнатa 17 кв. мОкна выходят на Восток (во двор)Хорошо просматривается парковка.Везде натяжные потолки, точечное освещение.На...
    • 37 м²
    • 1-ком
    • 3/10 эт.
    • кирпичный
    7 125 000 Р
    Агент
    +7 (914) Показать номер
    Посмотреть контакты
    1-к кв. Амурская область, Благовещенск ул. Василенко, 3/2 (39.0 м) - Фото 1
    1-к кв. Амурская область, Благовещенск ул. Василенко, 3/2 (39.0 м) - Фото 2
    1-комнатная квартира, общая площадь 39м², кухня 8м²

    Продаётся уютная квартира в современном доме Идеальный вариант для комфортной жизни Продаётся прекрасная однокомнатная квартира в доме 2018 года постройки, расположенная на втором этаже. Общая площадь квартиры составляет 39 кв.м., что делает её идеальным...
    • 39 м²
    • 1-ком
    • 2/11 эт.
    • кирпичный
    7 300 000 Р
    Агент
    +7 (914) Показать номер
    Посмотреть контакты
    1-к кв. Амурская область, Благовещенск Амурская ул., 55/2 (33.8 м) - Фото 1
    1-к кв. Амурская область, Благовещенск Амурская ул., 55/2 (33.8 м) - Фото 2
    1-комнатная квартира, общая площадь 33м², кухня 12м²

    В прoдаже уютная 1 комнaтная квартирa в центpе гopодa. Pазвитый райoн и тpaнcпoртная доcтупность oбеспeчит вaм кoмфopтнoe пpoживание. В квaртиpe oстаетcя вся мeбель и тeхника. Дoм кирпичный 2017 гoдa поcтpойки. Paспoлoженa на 7 этaже. Южная cтoрона, с...
    • 33 м²
    • 1-ком
    • 7/10 эт.
    • кирпичный
    7 250 000 Р
    Агент
    +7 (914) Показать номер
    Посмотреть контакты
    2-к кв. Амурская область, Благовещенск Кузнечная ул., 15 (43.0 м) - Фото 1
    2-к кв. Амурская область, Благовещенск Кузнечная ул., 15 (43.0 м) - Фото 2
    2-комнатная квартира, общая площадь 43м², кухня 6м²

    В продаже уютная 2 комнатная квартира в кирпичном 5 этажном доме. Квартира расположена на 4 этаже. В квартире остается кухня, шкаф купе, водонагреватель и кондиционер. Рядом с домом развита инфраструктура, все в шаговой доступности, ОКЦ, школа, бассейн,...
    • 43 м²
    • 2-ком
    • 4/5 эт.
    • кирпичный
    7 150 000 Р
    Агент
    +7 (914) Показать номер
    Посмотреть контакты

    Не нашли подходящего объявления?

    Оставьте заявку, и наши риэлторы подберут квартиру в районе Благовещенска

    (0)