Реализация объекта недвижимости приостановлена

Информация об помещении

1
Этаж

Состояние и оснащение

Количество этажей
2
Развернуть

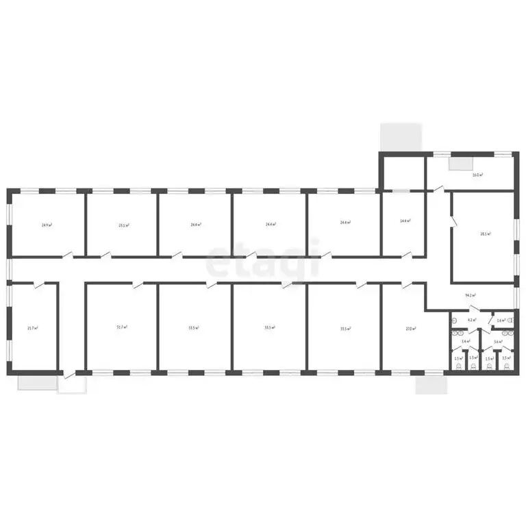
Помещение свободного назначения (500 м)

Начинаем продажу коммерческих помещений в строящемся здании.1 этаж 500 м - свободная площадь.2 этаж 500 м - офисные помещения.Стоимость на этапе цоколя - 110 тыс/ мПродажа поэтажно. Коммуникации:Разрешенная электрическая мощность - 200 кВт,Водоснабжение - Скважина артезианская,Водоотведение - канализация централизованная, Отопление - электро-конвекторное.Инфраструктура: Земельный участок расположен юго-восточной части г. Благовещенска, в районе городского железнодорожного вокзала, на пересечении улиц Станционная - Островского. Размещение проектируемого объекта по отношению к окружающей территории: • С северной стороны – ул. Станционная. • С восточной стороны – частный сектор. • С южной стороны – территория многоквартирного жилого дома. • С западной стороны – ул. Островского. Цветовое решение фасадов на фото. Количество парковочных мест - min 20.Все подробности по телефону, успевайте приобрести эксклюзивный объект в шикарном месте. Компания Этажи предоставляет профессиональное юридическое сопровождение сделки Компания Этажи входит в НП Гильдия Риэлторов Приамурья . Код пользователя: 118159Номер в базе: 4669545

Читать полностью

    Реализация объекта недвижимости приостановлена

    Не нашли подходящего объявления?

    Оставьте заявку, и наши риэлторы подберут псн в районе Благовещенска

    (0)