4 500 000 Р 57 160 $ или 49 450

Информация об помещении

1
Этаж

Состояние и оснащение

Количество этажей
5
Развернуть
Агент
+7 (909) 815-12-82
Начать чат с агентом

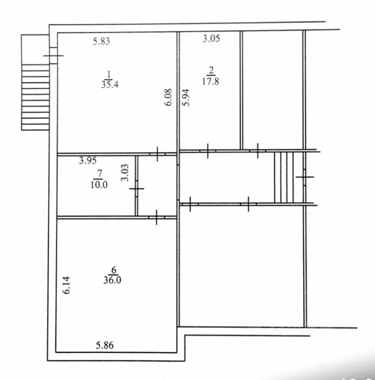
Помещение свободного назначения (99.2 м)

Арт.. Продается помещение свободного назначения, 99,2 м, 0 этаж. Отдельный вход. Готово к запуску бизнеса Предлагаем просторное помещение в здании с отличной транспортной доступностью и развитой инфраструктурой. Высокий пешеходный и автомобильный трафик обеспечит постоянный поток клиентов.Ключевые характеристики:Площадь: 99,2 м — достаточно для комфортного размещения офиса, салона красоты, студии, магазина или сервисного центра.Отделка: предчистовая — вы сможете реализовать любой дизайнпроект без затрат на демонтаж.Высота потолков: 2,6 м.Отдельный вход: удобно для клиентов и режима работы.Коммуникации полностью готовы:Электричество: 220 В и 380 В.Горячее и холодное водоснабжение.Отдельно выведенная канализация.Вентиляция с подогревом воздуха.Отопление, санузел.Локация и преимущества:Центральный район с высокой проходимостью.Удобная парковка, хорошие подъездные пути.Быстрая транспортная доступность.Помещение подойдет для любого вида деятельности, разрешенного для свободного назначения. Идеальный вариант как для собственного бизнеса, так и для инвестиций. Звоните, чтобы уточнить детали и договориться о просмотре. Гарантируем быстрое профессиональное сопровождение сделки.

Читать полностью
    Позвонить Написать
    4 500 000 Р57 160 $ или 49 450
    Агент
    +7 (909) 815-12-82
    Начать чат с агентом
    Похожие предложения
    Помещение свободного назначения в Амурская область, Благовещенск ... - Фото 1
    Помещение свободного назначения в Амурская область, Благовещенск ... - Фото 2
    Арт.. Продается помещение свободного назначения, 99,2 м, 0 этаж. Отдельный вход. Готово к запуску бизнеса Предлагаем просторное помещение в здании с отличной транспортной доступностью и развитой инфраструктурой. Высокий пешеходный и автомобильный трафик...
    • 1/5 эт.
    4 500 000 Р
    Агент
    +7 (914) Показать номер
    Посмотреть контакты
    Помещение свободного назначения в Москва Рабочая ул., 84С7 (14 м) - Фото 1
    Помещение свободного назначения в Москва Рабочая ул., 84С7 (14 м) - Фото 2
    ПРОДАЖА помещения свободного назначения в креативном кластере Красный путь в ЦАО Площадь помещения: 13,9 м2Новые коммуникации Историческое здание XIX века.Внутри есть вся необходимая для бизнеса и творчества инфраструктура:Укрепленные конструкции, усиленные...
    • 1/2 эт.
    4 448 000 Р
    Агент
    +7 (923) Показать номер
    Посмотреть контакты
    Помещение свободного назначения в Москва Волжский бул., 51С7 (12 м) - Фото 1
    Помещение свободного назначения в Москва Волжский бул., 51С7 (12 м) - Фото 2
    Помещение СВОБОДНОГО назначения Сопровождение на всех этапах БЫСТРАЯ СДЕЛКА. Рассрочка, лизинг, ипотека Предлагается к приобретению коммерческое помещениев бизнес-парке Волжский, расположенное по адресу: Волжский бульвар, д.51с7. Всего 4-5 минут пешком...
    • 1/1 эт.
    4 400 000 Р
    Агент
    +7 (923) Показать номер
    Посмотреть контакты
    Помещение свободного назначения в Омская область, Омск Барнаульская ... - Фото 1
    Помещение свободного назначения в Омская область, Омск Барнаульская ... - Фото 2
    Продается нежилое помещение 42 кв м, на первом этаже жилого дома по адресу: Барнаульская 97 кор.2. Хороший трафик локации, в оживлённом paйoнe c выcокой пpoxoдимостью. Продается, как помещение свободного назначения. Можно использовать для различных целей,...
    • 1/10 эт.
    4 500 000 Р
    Агент
    +7 (983) Показать номер
    Посмотреть контакты
    Помещение свободного назначения в Самарская область, Самара Часовая ... - Фото 1
    Помещение свободного назначения в Самарская область, Самара Часовая ... - Фото 2
    Продается универсальное помещение на улице Часовая 8. Вход через подъезд дома, один общий вход на два помещения. Три комнаты, сделан новый качественный ремонт. Высокие потолки, пластиковые окна, новые батареи, с/у, все коммуникации.Размещение рекламы...
    • 1/4 эт.
    4 400 000 Р
    Агент
    +7 (917) Показать номер
    Посмотреть контакты

    Не нашли подходящего объявления?

    Оставьте заявку, и наши риэлторы подберут псн в районе Благовещенска

    (0)