14 000 000 Р 184 000 $ или 157 800

Информация о коттедже

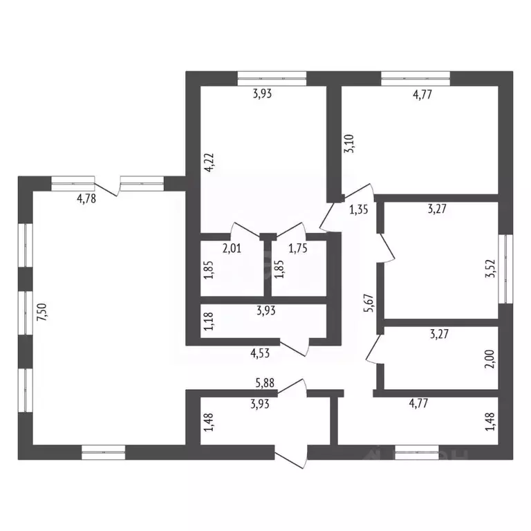
71 м2
Площадь
1
Этажность
14 cоток
Участок

Дополнительная информация

Дом продаётся вместе с участком
есть
Развернуть
Агент
+7 (914) 590-17-73
Начать чат с агентом

Дом в Амурская область, Благовещенский район, с. Чигири ул. ...

Продается дом с земельным участком в с. Чигири, ул. Благовещенская. Расположен на высоком месте, не подтапливается, не бьют ключи. Площадь дома - 71,5 кв.м. Год постройки - 2011. Материал - кирпич, облицован,утеплен. Высота потолков - 3 м. Есть веранда площадью 10,1 кв. м. (не входит в площадь дома). Дом очень светлый, теплый и уютный.В доме 3 комнаты - просторная гостиная с кухней и две спальни. Выполнен современный ремонт. Есть большой оборудованный погреб.Дом полностью меблирован - в кухне установлен современный кухонный гарнитур со встроенной техникой , в комнатах диваны, тумбы, кресла, шкафы и т.д.Ванная комната и туалет полностью оборудованы техникой и фаянсом, септик на 25 кубов.Практически вся мебель и техника остаются новому владельцу.Заезжай и живи - вложений не требуется.Отопление - водяное, твердотопливный котел. Также есть красивый рабочий камин,создающий поистине потрясающую атмосферу тепла и уюта в доме.Водоснабжение - центральное - от местной водонапорной башни. Вода чистая и вкусная.Участок - 14,82 сот. На участке есть летняя кухня с мангальной зоной, несколько теплиц, множество плодовых деревьев, цветов и иных культурных насаждений.Также на участке расположен гараж из сендвич-панелей, площадью 36,4 кв. м.,заезд с улицы.В целом - идеальный вариант своего дома на земле - в нем есть абсолютно все -комфорт, тепло, уют, пространство, современный стиль и огород. Отличный вариант для большой семьи с возможностью приглашать в гости близких людей.Этот дом не оставит равнодушным никого Ищешь дом своей мечты - звони сейчас, не упускай свой шанс Код пользователя: 183678Номер в базе: 9897350

Читать полностью

    Для того, чтобы купить 1-этажный коттедж по адресу: Чигири, Благовещенская улица, 5, позвоните по телефону +7 (914) 590-17-73. Торопитесь! Объявление №50016426453 о продаже одноэтажного коттеджа опубликовано 2 дня назад.

    Позвонить Написать
    14 000 000 Р184 000 $ или 157 800
    Агент
    +7 (914) 590-17-73
    Начать чат с агентом
    Похожие предложения
    Дом в Амурская область, Благовещенский район, с. Чигири ул. Красная, ... - Фото 1
    Дом в Амурская область, Благовещенский район, с. Чигири ул. Красная, ... - Фото 2
    1 этаж, общая площадь 129м², участок 13 соток

    В продаже шикарный 3+ дом в селе ЧИГИРИ.( рядом находится идентичный дом, в продаже ) Площадь дома 129 кв. м. Площадь участка 13.540 сотки. Расположенный в 15 минутах от центра города. Дом построен полностью из кирпича, облицовка также кирпич.В доме...
    • 1 эт.
    • 129 м²
    • 13 сот.
    15 000 000 Р
    Агент
    +7 (914) Показать номер
    Посмотреть контакты
    Дом в Амурская область, Благовещенский район, с. Чигири  (147 м) - Фото 1
    Дом в Амурская область, Благовещенский район, с. Чигири  (147 м) - Фото 2
    1 этаж, общая площадь 147м², участок 9 соток

    Продается кирпичный дом с гаражом на участке 9 соток Просторный дом с гаражом, построенный с заботой о комфорте: - Кирпичные стены + облицовочный кирпич + утепление Базалит 20 см тепло зимой и прохлада летом - Фундамент монолитная плита, надежная...
    • 1 эт.
    • 147 м²
    • 9 сот.
    14 000 000 Р
    Агент
    +7 (914) Показать номер
    Посмотреть контакты
    Дом в Амурская область, Благовещенский район, с. Чигири Свободный ... - Фото 1
    Дом в Амурская область, Благовещенский район, с. Чигири Свободный ... - Фото 2
    1 этаж, общая площадь 133м², участок 8 соток

    Предлагается к продаже теплый и уютный дом, построенный в 2023 году. Идеальный вариант для комфортной жизни без дополнительных вложений.В доме выполнен качественный ремонт с использованием современных материалов и техники. Дом очень теплый.Полностью готов...
    • 1 эт.
    • 133 м²
    • 8 сот.
    14 500 000 Р
    Агент
    +7 (914) Показать номер
    Посмотреть контакты
    Коттедж в Амурская область, Благовещенский район, с. Чигири пер. ... - Фото 1
    Коттедж в Амурская область, Благовещенский район, с. Чигири пер. ... - Фото 2
    2 этажа, общая площадь 167м², участок 11 соток

    Арт.. Продается уютный коттедж с великолепным садом и сауной Подходит по льготной ДВ ипотеке.Характеристики:• Площадь: 167.1 м ( из них гараж 42.5 м2 на две машины)• Этажность: 2 этажа• Высота потолков: 2,9 м• Просторная ванная комната: 5,6 мФундамент...
    • 2 эт.
    • 167 м²
    • 11 сот.
    13 990 000 Р
    Агент
    +7 (914) Показать номер
    Посмотреть контакты
    Дом в Амурская область, Благовещенский район, с. Чигири Первомайская ... - Фото 1
    Дом в Амурская область, Благовещенский район, с. Чигири Первомайская ... - Фото 2
    1 этаж, общая площадь 89м², участок 20 соток

    Отличный выбор Дом на 19 сотках из пескоблоков с современной отделкой — это мечта многих.Земельный участок: 19 соток (1900 кв.м.) — это огромное пространство для воплощения любых идей. Участок правильной формы, ухоженный, с зонированием под разные нужды.Материал...
    • 1 эт.
    • 89 м²
    • 20 сот.
    15 000 000 Р
    Агент
    +7 (914) Показать номер
    Посмотреть контакты

    Не нашли подходящего объявления?

    Оставьте заявку, и наши риэлторы подберут купить дом в районе

    (0)