11 500 000 Р 142 200 $ или 122 400

Информация о коттедже

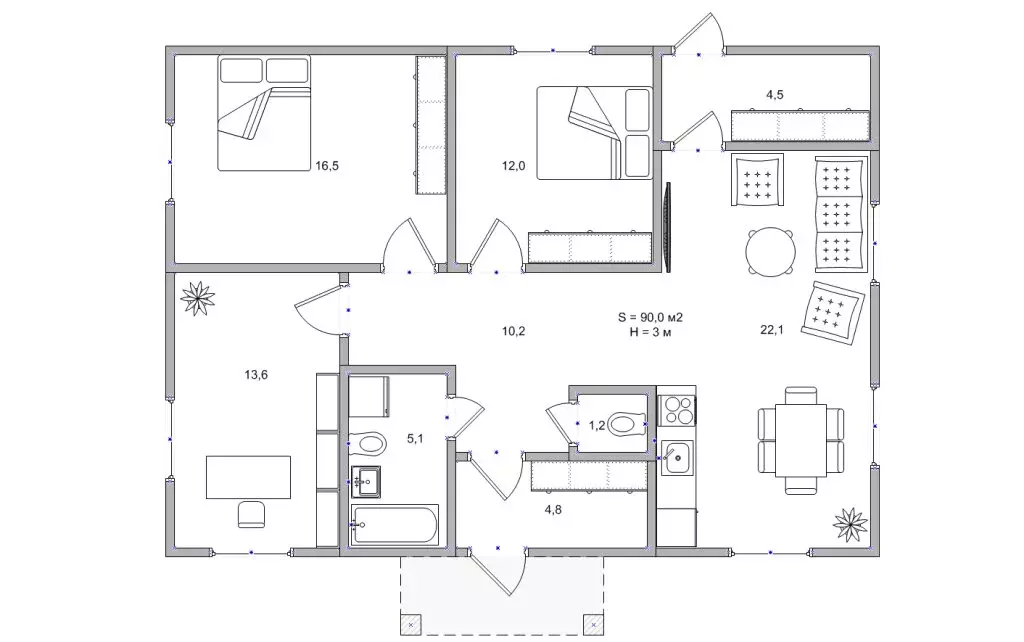
90 м2
Площадь
1
Этажность
8 cоток
Участок

Дополнительная информация

Дом продаётся вместе с участком
есть
Развернуть
Агент
+7 (914) 560-85-89
Начать чат с агентом

Дом в Чигири, Высокая улица (90 м)

Арт.. Дом площадью 90 м2, на участке земли 8 соток, находится в с. Чигири, в районе улицы Высокой.- Общей площадью 90 м2, на участке земли, 8 соток.- Фундамент - плита 450 мм с двойным армированием 12 арматурой- Стены - автоклавный газобетон, ППС, облицовочный кирпич- Кровля - мягкая кровля SHINGLAS- Бетонные плиты перектрытия- Высота потолков - 3,1 м- В гостинной большие панорамные окна с шикарным видом на город- Вода - скважина 98м- Отопление - теплый пол, котёл Zota Lux 12kw- Электричество 380В, 15кВт- Септик - 8 м куб.Энергоэффектиность дома очень высокаяДом будет достроен в августе 2025, будет установлена хорошая входная дверь с терморазрывом и качественные окна, отделка witebox, но по желанию покупателя можем сделать в доме ремонт.Возможен обмен на квартиру в городе.Дом подходит по все виды ипотек, поможем оформить ипотеку на выгодных условиях без визита в банк Компания Сделка входит в Амурскую Ассоциацию Риэлторов (ААР) и Российскую Гильдию Риэлторов (РГР).

Читать полностью

    Для того, чтобы купить 1-этажный коттедж по адресу: Чигири, Высокая улица, позвоните по телефону +7 (914) 560-85-89. Торопитесь! Объявление №50016467865 о продаже одноэтажного коттеджа опубликовано Вчера.

    Позвонить Написать
    11 500 000 Р142 200 $ или 122 400
    Агент
    +7 (914) 560-85-89
    Начать чат с агентом
    Похожие предложения
    Дом в Амурская область, Благовещенский район, с. Чигири  (90 м) - Фото 1
    Дом в Амурская область, Благовещенский район, с. Чигири  (90 м) - Фото 2
    1 этаж, общая площадь 90м², участок 5 соток

    В продаже дом площадью 90 кв. м. на участке 5 соток. 3 комнаты и кухня-гостиная с возможностью выхода на террасу. Дом расположен в тихом живописном районе с хорошей транспортной доступностью, 3 минуты до ул. Центральная. Дом построен из силикатного кирпича...
    • 1 эт.
    • 90 м²
    • 5 сот.
    11 500 000 Р
    Агент
    +7 (914) Показать номер
    Посмотреть контакты
    Дом в Амурская область, Благовещенский район, с. Чигири Центральная ... - Фото 1
    Дом в Амурская область, Благовещенский район, с. Чигири Центральная ... - Фото 2
    2 этажа, общая площадь 222м², участок 10 соток

    Продам дом в самом центре с.Чигири, который находится по улице Юбилейная 7.Дом 2023 года постройки , выполнен из бруса :сосна и лиственница 200/200. В доме 2 этажа общей площадью 222 м2, на первом этаже есть гараж.Дом пригоден для проживания все коммуникация...
    • 2 эт.
    • 222 м²
    • 10 сот.
    12 500 000 Р
    Агент
    +7 (914) Показать номер
    Посмотреть контакты
    Дом в Амурская область, Благовещенский район, с. Чигири Рабочая ул., ... - Фото 1
    Дом в Амурская область, Благовещенский район, с. Чигири Рабочая ул., ... - Фото 2
    1 этаж, общая площадь 160м², участок 9 соток

    Центр чигирей до центральной 200мПРЕДЛАГАЮ К ПРОДАЖЕ ДОМ РЕАЛЬНОМУ ПОКУПАТЕЛЮ ТОРГВозможно на 1.100.000 дешевле без внутренних работ Успейте купить Остались отделочные работыОткосы сливы , можем вместе обсудить разводку проводки на ваше усмотрение...
    • 1 эт.
    • 160 м²
    • 9 сот.
    12 500 000 Р
    Агент
    +7 (914) Показать номер
    Посмотреть контакты
    Дом в Амурская область, Благовещенский муниципальный округ, село ... - Фото 1
    2 этажа, общая площадь 120м², участок 15 соток

    Предлагаем к продаже дом с предчистовой отделкой, есть возможность разместить на участке гараж. Есть вариант с ремонтом. Подходит под разную форму оплату
    • 2 эт.
    • 120 м²
    • 15 сот.
    12 000 000 Р
    Агент
    +7 (914) Показать номер
    Посмотреть контакты
    Дом в Амурская область, Благовещенский район, с. Чигири ул. ... - Фото 1
    Дом в Амурская область, Благовещенский район, с. Чигири ул. ... - Фото 2
    2 этажа, общая площадь 118м², участок 6 соток

    Продается отличный дом от застройщика с качественным ремонтом Удобное расположение: всего 250 метров до центральной улицы и магазина Хотей . В шаговой доступности остановка общественного транспорта, детский сад и супермаркет. Идеальный вариант для комфортной...
    • 2 эт.
    • 118 м²
    • 6 сот.
    11 999 000 Р
    Агент
    +7 (914) Показать номер
    Посмотреть контакты

    Не нашли подходящего объявления?

    Оставьте заявку, и наши риэлторы подберут купить дом в районе

    (0)