Реализация объекта недвижимости приостановлена

Информация о коттедже

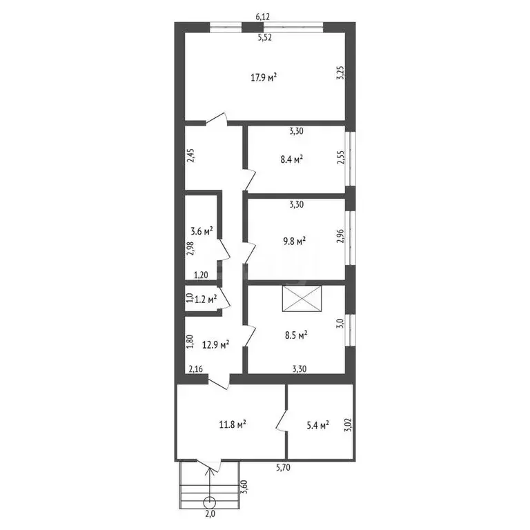
62.0 м2
Площадь
1
Этажность
10.0 cоток
Участок

Дополнительная информация

Дом продаётся вместе с участком
есть
Развернуть

Дом в Тамбовка, Заводская улица (62.3 м)

В доме всегда комфортная температура, тепло, даже в сильный мороз. Для тех, кто ищет жилье в формате «заезжай и живи . Вдали от шумной трассы, что гарантирует тишину и спокойствие. Ходит городской транспорт. В доме проведены все коммуникации, что облегчает и улучшает комфортную жизнь. Большая территория - 10 соток, на которой есть постройки. Сарай и угольник.Так же есть теплица У вас всегда будут свежие и домашние овощи.Организуем показ в любое удобное время. А так же для вас полное юридическое сопровождение. Код пользователя: 145211Номер в базе: 4820017

Читать полностью

    Реализация объекта недвижимости приостановлена

    Не нашли подходящего объявления?

    Оставьте заявку, и наши риэлторы подберут купить дом в районе Тамбовки

    (0)