Реализация объекта недвижимости приостановлена

Информация о коттедже

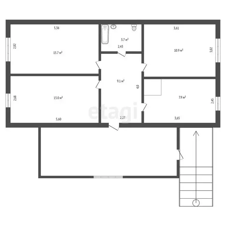
62.0 м2
Площадь
1
Этажность
25.0 cоток
Участок

Дополнительная информация

Дом продаётся вместе с участком
есть
Развернуть

Дом в Тамбовка, Новая улица (62.3 м)

Продается просторная трехкомнатная квартира в двухквартирном жилом кирпичном доме на земельном участке. Дом утеплен и обшит металлом, что обеспечивает комфорт в любое время года. В квартире выполнен качественный ремонт, все окна – МПО. В доме есть совмещенный санузел, холодная и горячая вода, канализация, а также септик на 5 кубов. Установлен водонагреватель на 80 литров и электрический проточный кран на кухне. Имеется точка Ростелекома для подключения интернета. В квартире остается кухонный гарнитур с варочной поверхностью GORENJE на 4 комфорки, обеденный стол с двумя стульями и диван. Отопление – печное и электрическое (установлен котел ZOTA с электронным таблом). Полная замена водяного отопления с установкой новых труб и современных чугунных батарей. Имеется двухтарифный электрический счетчик и подведено 380 В. Просторная светлая веранда добавляет уюта и позволяет наслаждаться свежим воздухом. Во дворе пробита водяная скважина на 27 м, а также построен гараж из бруса, обшитый металлом, на 2 машины. Большая приусадебная территория с плодово-ягодными насаждениями и грядкой клубники, а также отдельный большой огород. Инфраструктура в шаговой доступности: магазины, школы, остановки общественного транспорта. Квартира юридически чистая, обременений нет. Рассмотрю любые формы оплаты. Не упустите возможность стать владельцем этого замечательного жилья Звоните прямо сейчас, чтобы записаться на просмотр и узнать больше Ваш новый дом ждет вас Код пользователя: 173567Номер в базе: 4783070

Читать полностью

    Реализация объекта недвижимости приостановлена

    Не нашли подходящего объявления?

    Оставьте заявку, и наши риэлторы подберут купить дом в районе Тамбовки

    (0)