Россия, Амурская область, Тында, Московский бул., 1
8 900 000 Р 116 200 $ или 97 760

Информация о квартире

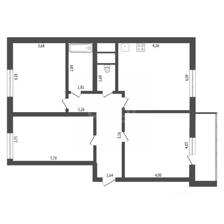
61 м2
Площадь
6 м2
Кухня
3
Комнаты
7
Этаж
9
Этажность
Развернуть
Агент
+7 (914) 610-07-45
Начать чат с агентом

3-к кв. Амурская область, Тында Московский бул., 1 (61.1 м)

Ваша новая жизнь начинается здесь Продаётся уютная 3-комнатная квартира площадью 61.1 кв.м. на 7 этаже в центре г.Тында.В квартире выполнен современный ремонт, остается вся необходимая мебель и бытовая техника: диваны, кровать, обеденный и рабочий столы, стиральная машина, электроплита, телевизоры, микроволновая печь, холодильник, встроенные шкафы.Квартира светлая, чистая, теплая. Балкон застеклен. Удобная планировка, санузел раздельный, облицован кафелем.Рядом с домом расположены школы, детские сады, продуктовые магазины, магазины, автобусные остановки, аптека. Во дворе дома есть парковка, детская и спортивная площадки, а также сквер для прогулок всего в пяти минутах от дома.Квартира окружена дружелюбными соседями, создавая уютную атмосферу для вашей семьи.Документы готовы, обременений и ограничений нет. Показы проводятся по договоренности.Данная квартира подходит под льготную ипотеку С федеральным агентством недвижимости Этажи вы получите выгодные условия по ипотеке, высокий процент одобряемости и быстрое рассмотрение заявки. Все консультации бесплатны Мы обеспечиваем полное юридическое сопровождение сделки, экономя ваше время. Звоните прямо сейчас и записывайтесь на просмотр в удобное для вас время С уважением, Ангелина Подлипалина, специалист по недвижимости компании Этажи . Не упустите шанс купить квартиру своей мечты Дополнительно оплачивается комиссия с покупателя.Код пользователя:Номер в базе: 4743085

Читать полностью

    Для того, чтобы купить трехкомнатную квартиру по адресу: Тында, Московский бул., 1, позвоните по телефону +7 (914) 610-07-45. Торопитесь! Объявление №30090218131 о продаже трехкомнатной квартиры опубликовано 06 февраля 2026.

    Позвонить Написать
    8 900 000 Р116 200 $ или 97 760
    Агент
    +7 (914) 610-07-45
    Начать чат с агентом
    Похожие предложения
    3-к кв. Амурская область, Тында Московский бул., 1 (61.1 м) - Фото 1
    3-к кв. Амурская область, Тында Московский бул., 1 (61.1 м) - Фото 2
    3-комнатная квартира, общая площадь 61м², кухня 6м²

    Ваша новая жизнь начинается здесь Продаётся уютная 3-комнатная квартира площадью 61.1 кв.м. на 7 этаже в центре г.Тында.В квартире выполнен современный ремонт, остается вся необходимая мебель и бытовая техника: диваны, кровать, обеденный и рабочий столы,...
    • 61 м²
    • 3-ком
    • 7/9 эт.
    8 900 000 Р
    Агент
    +7 (914) Показать номер
    Посмотреть контакты
    3-к кв. Амурская область, Благовещенск ул. Строителей, 79 (82.8 м) - Фото 1
    3-к кв. Амурская область, Благовещенск ул. Строителей, 79 (82.8 м) - Фото 2
    3-комнатная квартира, общая площадь 82м², жилая 49м², кухня 17м²

    Продам 3х комнатную квартируО доме:Кирпич, Сдан в 2015 году, 10 этажейИнфраструктура:Район активно застраивается жилыми комплексамиВ пешей доступности супермаркет, аптека, детский сад, школа, детская поликлиника, педколледж и многое другоеХорошая транспортная...
    • 82 м²
    • 3-ком
    • 1/10 эт.
    • монолит
    8 900 000 Р
    Агент
    +7 (914) Показать номер
    Посмотреть контакты
    3-к кв. Амурская область, Благовещенск Институтская ул., 3/3 (66.5 м) - Фото 1
    3-к кв. Амурская область, Благовещенск Институтская ул., 3/3 (66.5 м) - Фото 2
    3-комнатная квартира, общая площадь 66м², кухня 10м²

    В продаже трехкомнатная квартира, расположенная по адресу: Институтская 3/3.Дом 1997 года постройки.Квартира расположена на удобном втором этаже.Просторные комнаты. Есть застекленный балкон с отделкой на два окна.Санузел раздельный.Квартира с косметическим...
    • 66 м²
    • 3-ком
    • 2/9 эт.
    • панельный
    9 000 000 Р
    Агент
    +7 (914) Показать номер
    Посмотреть контакты
    2-к кв. Амурская область, Благовещенск Игнатьевское ш., 17 (57.9 м) - Фото 1
    2-к кв. Амурская область, Благовещенск Игнатьевское ш., 17 (57.9 м) - Фото 2
    2-комнатная квартира, общая площадь 57м², кухня 11м²

    Продаётся квартира с личным космическим доком для шин. Или история о том, как мы научили вещи самоорганизации.Представьте утро. Вы просыпаетесь от солнца в одной комнате. Ваша вторая половинка — от солнца в другой. Вы идёте в свой санузел. Он — в свой....
    • 57 м²
    • 2-ком
    • 9/14 эт.
    • кирпичный
    8 900 000 Р
    Агент
    +7 (914) Показать номер
    Посмотреть контакты
    2-к кв. Амурская область, Благовещенск Заводская ул., 2/4 (73.0 м) - Фото 1
    2-к кв. Амурская область, Благовещенск Заводская ул., 2/4 (73.0 м) - Фото 2
    2-комнатная квартира, общая площадь 73м², жилая 31м², кухня 13м²

    Арт.. Квартира вашей мечты уже ждет вас Квартира площадью 73 кв.м, на две стороны (распашёнка) , в черновой отделке.Окна выходят на новую набережную и двор.Черновая отделка идеальный вариант как для создания интерьера вашей мечты так и для инвестиций.Высокий...
    • 73 м²
    • 2-ком
    • 12/15 эт.
    • кирпичный
    9 000 000 Р
    Агент
    +7 (914) Показать номер
    Посмотреть контакты

    Не нашли подходящего объявления?

    Оставьте заявку, и наши риэлторы подберут квартиру в районе Тынды

    (0)