Реализация объекта недвижимости приостановлена

Информация о квартире

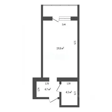
39.0 м2
Площадь
17.0 м2
Жилая
9.0 м2
Кухня
1
Комната
2
Этаж
5
Этажность
Развернуть

1-комнатная квартира: Тында, улица Мохортова, 3А (39 м)

Арт.Продается светлая, уютная 1-ая квартира НШС в центре г. Тында, по ул. Мохортова д. 3А. Квартира общей площадью 39,0 кв.м, станет отличным выбором как для проживания, так и для сдачи в аренду. Изолированная планировка обеспечивает комфортное использование пространства, а жилая площадь в 17,9 кв. м позволяет разместить все необходимое для комфортной жизни.Квартира расположена на 2-ом этаже, панельного 5-ти этажного дома. Высота потолков составляет 2.7 м, что создает ощущение простора.Квартира меблированная, из мебели в квартире остаётся: кухонный гарнитур, шкаф-купе в прихожей, диван и стенка в комнате, стол компьютерный.Бытовая техника остаётся: стиральная машина LG, плита стеклокерамика электрическая gorenje с духовкой (новая, срок пользования 1 год), холодильник двухкамерный LG.Хорошая планировка включает в себя раздельный санузел, ванная (4,4 кв.м) и просторную кухню площадью 9,0 кв.м, идеально подходящую для приготовления пищи.В квартире имеется лоджия, с которого открывается вид во двор, что создаст атмосферу уединения. Проработанная инфраструктура района: детский сад, лицей, школа, площадь 25-летия Бама, магазины, аптеки, салоны красоты и все что необходимо для комфортного проживания находится в шаговой доступности. Не упустите возможность стать обладателем этой прекрасной квартиры Звоните, договоримся о просмотре квартиры Онлайн-показ

Читать полностью

    Реализация объекта недвижимости приостановлена

    Не нашли подходящего объявления?

    Оставьте заявку, и наши риэлторы подберут квартиру в районе Тынды

    (0)